Модельный ряд
Флокуляция: ключевой процесс в очистке сточных вод
Что такое флокуляция
Флокуляция — это физико-химический процесс агрегации мелкодисперсных частиц в более крупные образования, называемые флокулами. Этот процесс играет важнейшую роль в очистке сточных вод, позволяя перевести трудноудаляемые загрязнения в осаждаемые формы, облегчающие последующую механическую фильтрацию или отстаивание.
Флокуляция осуществляется с применением специальных реагентов — флокулянтов, которые инициируют объединение коллоидных частиц и тонкой взвеси в устойчивые агрегаты.
Флокулятор: оборудование для эффективной обработки сточных вод
Флокулятор — это специализированное устройство, обеспечивающее равномерное смешивание сточных вод с флокулянтом и создание оптимальных условий для формирования флокул. Он представляет собой ключевой узел очистных сооружений, повышающий эффективность процессов отстаивания, флотации и фильтрации.
Основные типы флокуляторов
-
Флокулятор трубчатый — компактен, прост в установке, создаёт ламинарное течение с необходимой турбулентностью;
-
Флокулятор в флотаторе — интегрированный модуль, используемый для подготовки стока перед флотацией;
-
Флокулятор отстойник — совмещает процессы флокуляции и отстаивания, снижая площадь и стоимость очистных сооружений;
-
Флокуляторы вертикального типа — применяются при высокой производительности и в случаях ограниченного пространства;
-
Флокуляторы горизонтального типа — используются для стабилизации течения и равномерного распределения реагента.
Принцип работы флокулятора
Процесс флокуляции включает несколько стадий:
-
Дозировка флокулянта — вводится строго определённое количество реагента;
-
Механическое перемешивание — обеспечивается за счёт мешалок или особой геометрии трубы (в трубчатых флокуляторах);
-
Формирование флокул — за счёт медленного перемешивания обеспечивается агрегация частиц;
-
Подача обработанного стока — после флокуляции поток направляется в отстойник, флотатор или фильтрационную установку.
Флокулятор трубчатый: достоинства и недостатки
Трубчатый флокулятор — один из самых популярных вариантов благодаря своей простоте, надежности и низкому энергопотреблению.
Преимущества:
-
Компактность — не требует большого пространства для размещения;
-
Эффективность — равномерное распределение реагента;
-
Низкие затраты на обслуживание — минимальное количество движущихся частей;
-
Лёгкость встраивания — можно интегрировать в уже существующие линии;
-
Модульность — легко масштабируется под любую производительность.
Недостатки:
-
Необходимость точного расчета параметров потока;
-
Ограниченная возможность регулировки процесса после монтажа;
-
Невозможность визуального контроля процесса внутри трубы.
Флокуляторы применяются для:
-
Очистки городских сточных вод;
-
Предочистки промышленных выбросов;
-
Обработки осадков сточных вод;
-
Подготовки воды в пищевой, химической, текстильной промышленности;
-
Интеграции в флотаторы, сгустители, фильтрационные системы.
Флокулятор экосистема: экологичный подход к водоочистке
Многие производители предлагают флокуляторы нового поколения, которые учитывают принципы экологичности и энергоэффективности. Такие системы комплектуются:
-
Автоматическими дозаторами флокулянтов;
-
Системами контроля pH, мутности, температуры;
-
Энергосберегающими приводами;
-
Цифровыми контроллерами и удалённым управлением.
Флокулятор экосистема — это не просто оборудование, а элемент умной системы водоочистки, обеспечивающей высокий уровень защиты окружающей среды.
Флокулятор купить: на что обратить внимание
При выборе оборудования важно учитывать:
-
Производительность: от 1 до 1000 м³/ч и более;
-
Материал исполнения: нержавеющая сталь, полипропилен, ПВХ;
-
Тип реагентов, применяемых на объекте;
-
Схему подключения — горизонтальное, вертикальное, модульное исполнение;
-
Совместимость с действующим оборудованием.
Рекомендуется покупать оборудование у проверенных поставщиков, предоставляющих гарантию, шефмонтаж, сервисное обслуживание и обучение персонала.
Автоматизация процессов флокуляции
Современные флокуляторы оснащаются системами управления, обеспечивающими:
-
Дозировку реагента по показаниям датчиков мутности и pH;
-
Регулировку времени перемешивания;
-
Архивирование данных и удалённый мониторинг;
-
Сигнализацию аварийных ситуаций.
Такие системы позволяют минимизировать влияние человеческого фактора и гарантировать стабильность качества очистки.
Примеры внедрения флокуляторов
Муниципальные очистные сооружения
Во многих городах России и СНГ используются трубчатые флокуляторы для подготовки воды перед поступлением в радиальные отстойники. Это позволяет существенно сократить концентрацию взвешенных веществ и повысить эффективность удаления БПК.
Пищевая промышленность
На предприятиях по переработке молока и мяса внедрение флокуляторов позволило сократить объёмы загрязнений, поступающих в центральные сети, и снизить плату за водоотведение.
Металлургия и машиностроение
Для предварительной обработки щелочных и масляных стоков флокуляторы обеспечивают агрегацию тяжелоосаждаемых частиц перед коагуляцией или флотацией.
Заключение
Флокуляция — это важнейший этап очистки сточных вод, позволяющий эффективно удалять трудноосаждаемые загрязнения. Флокуляторы, в том числе трубчатые, обеспечивают надёжную и энергоэффективную реализацию этого процесса. Современные технологические решения позволяют добиться высокой степени очистки даже при минимальных эксплуатационных затратах.
Для подбора оборудования для ваших нужд просим вас заполнить Опросный лист и направить нам на почту: info@vk-t.ru
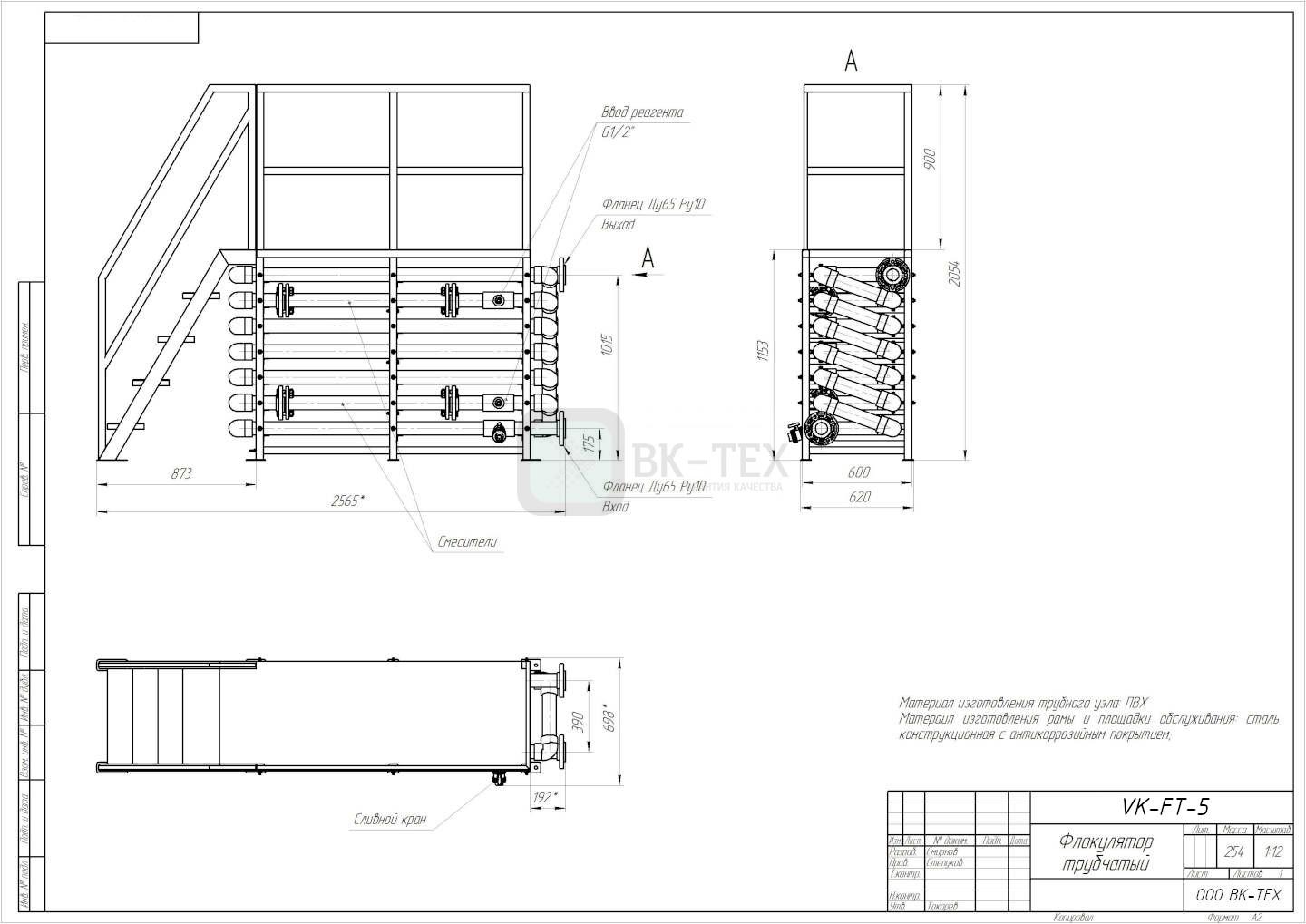
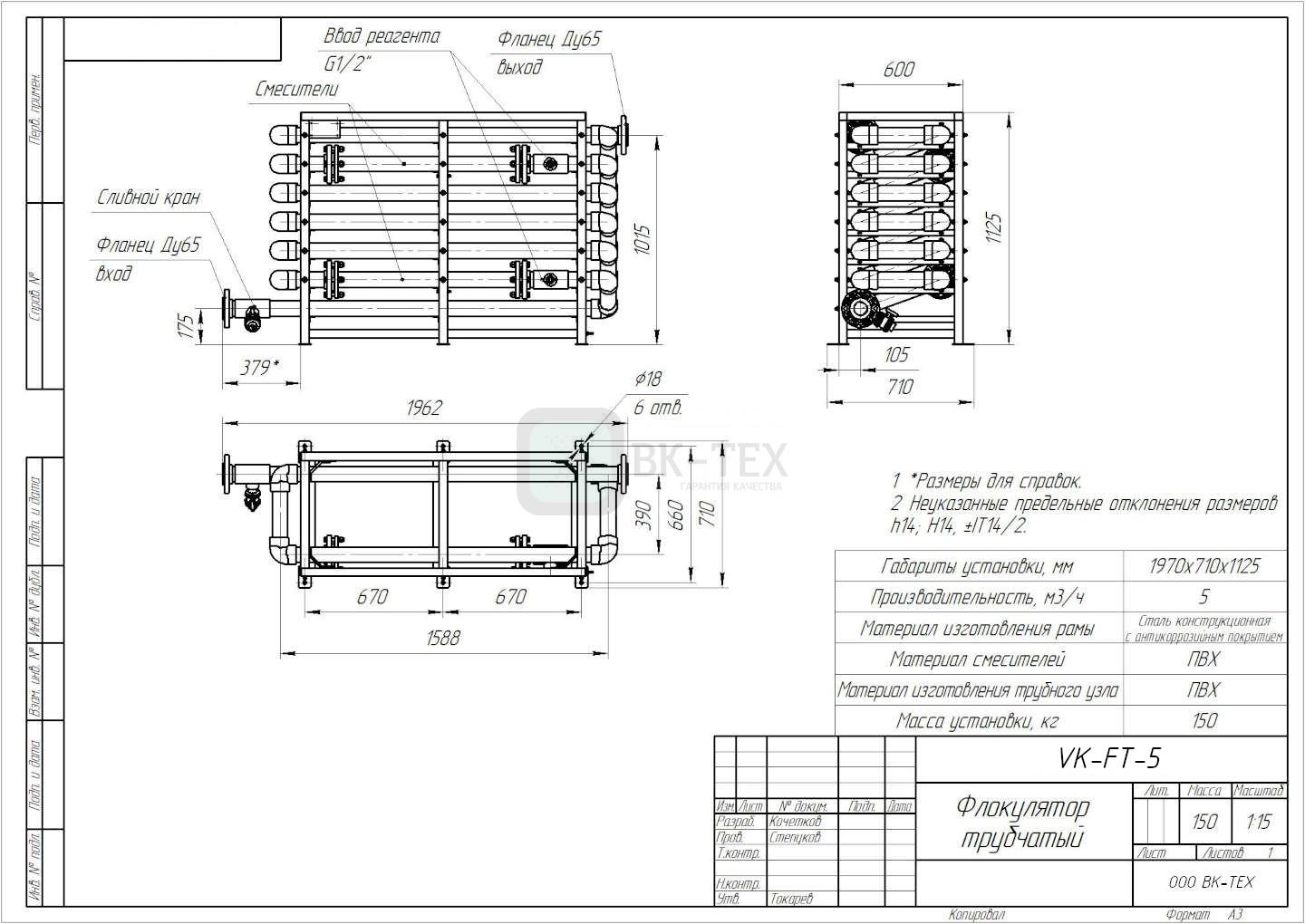
Флокулятор трубчатый
Применяется: для увеличения времени, скорости и эффективности образования хлопьев в загрязнённых жидких веществах с применением флокулянта и коагулянта. Является дополнительной установкой для флотатора или отстойника.
Дополнительно поставляется: Станция приготовления реагента, Отстойник, Флотатор.
Материалы изготовления: Рама — Нержавеющая сталь (AISI 304, 316, 321), Конструкционная сталь.
Смеситель — ПВХ/Нержавеющая сталь.
Обвязка — ПВХ
Сроки поставки: 30-60 рабочих дней в зависимости от загруженности производства.








