Модельный ряд
Горизонтальная песколовка: эффективность удаления тяжелых фракций из сточных вод
Назначение и значение горизонтальной песколовки
Горизонтальная песколовка — это специализированное сооружение, предназначенное для улавливания и удаления минеральных примесей, преимущественно песка и тяжелых взвешенных веществ из сточных вод. Она является неотъемлемой частью механической очистки на начальных стадиях технологической цепочки.
Использование горизонтальных песколовок позволяет:
-
Снизить абразивное воздействие на насосное и другое оборудование;
-
Предотвратить засорение трубопроводов;
-
Улучшить эффективность последующих этапов биологической очистки.
Конструкция и принцип работы горизонтальной песколовки
Горизонтальные песколовки могут быть с прямолинейным или круговым (тангенциальным) движением воды, каждая из которых имеет свои особенности.
Песколовка с прямолинейным движением воды
Данный тип характеризуется:
-
Простотой конструкции;
-
Относительно низкой стоимостью;
-
Возможностью обслуживания без остановки всей системы.
Принцип работы заключается в том, что сточные воды проходят через удлиненный прямоугольный канал, где скорость потока поддерживается на уровне 0,2–0,3 м/с. При такой скорости тяжелые фракции оседают на дно, а органические и легкие примеси уносятся далее.
Горизонтальная песколовка с круговым движением воды
Такая конструкция обеспечивает вращательное (тангенциальное) движение воды, создающее центробежные силы, которые способствуют более эффективному осаждению тяжелых частиц. Часто применяется на объектах с высокой нагрузкой и повышенным содержанием минеральных веществ.
Преимущества:
-
Более высокая эффективность улавливания;
-
Возможность автоматизации процессов удаления осадка;
-
Компактные габариты.
Схема горизонтальной песколовки
Типовая схема горизонтальной песколовки включает следующие элементы:
-
Входной лоток с регулируемым перепадом;
-
Основной канал осаждения;
-
Зону удаления осадка;
-
Механизм перемещения песка (например, шнек);
-
Систему промывки песка;
-
Выходной лоток для очищенной воды.
На объектах повышенной сложности дополнительно монтируются:
-
Аэрационные системы для предотвращения оседания органики;
-
Сенсоры уровня осадка;
-
Автоматизированные панели управления.
Промывка песка и удаление загрязнений
Песколовки часто комплектуются узлами для промывки грязного песка. Это позволяет отделить органику от минеральной фракции, тем самым:
-
Повышая качество утилизируемого материала;
-
Предотвращая загнивание и появление запахов;
-
Снижая объём вывозимых осадков.
Очищенный песок может утилизироваться в соответствии с санитарными нормами или использоваться в строительстве.
Расчет горизонтальной песколовки
Правильный расчет горизонтальной песколовки имеет решающее значение для её эффективности. Основными параметрами являются:
-
Производительность установки (м³/сутки);
-
Скорость потока (оптимально — 0,25 м/с);
-
Глубина осаждающей камеры (от 1 до 2 м);
-
Ширина и длина канала, зависящие от производительности;
-
Период осаждения (время, за которое частица осаждается на дно — не менее 30 секунд).
Пример: при производительности 5000 м³/сутки оптимальная длина песколовки составляет 10–15 метров, ширина — 1,5–2 метра, глубина — около 1,5 метра.
Типовой проект горизонтальной песколовки
В типовом проекте учитываются следующие аспекты:
-
Расчетный расход сточных вод;
-
Климатические условия региона;
-
Характеристика загрязняющих веществ;
-
Способ удаления песка (механический, гидравлический, ручной);
-
Интеграция в общую технологическую линию очистки.
Типовой проект должен соответствовать требованиям СП 32.13330.2018 «Канализация. Наружные сети и сооружения» и другим нормативным документам РФ.
Преимущества горизонтальных песколовок
-
Надежность и простота конструкции;
-
Высокая эффективность при соблюдении расчетных параметров;
-
Низкие капитальные и эксплуатационные затраты;
-
Возможность модернизации и автоматизации;
-
Устойчивость к перепадам нагрузки и температуры.
Где применяются песколовки
-
Муниципальные очистные сооружения;
-
Промышленные объекты: пищевые, машиностроительные, химические производства;
-
Автомойки и транспортные предприятия;
-
Комплексные системы очистки дождевых и ливневых стоков.
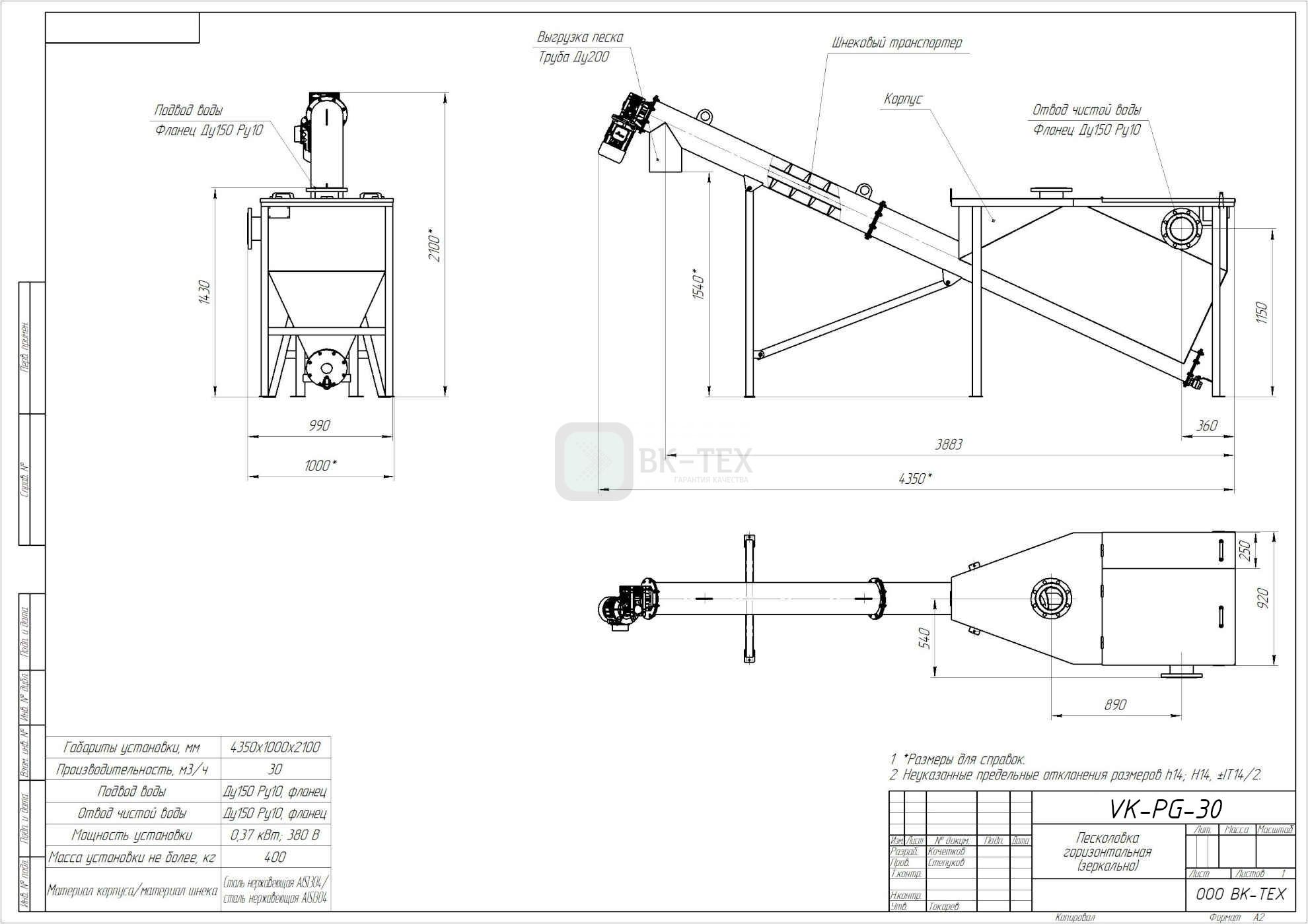
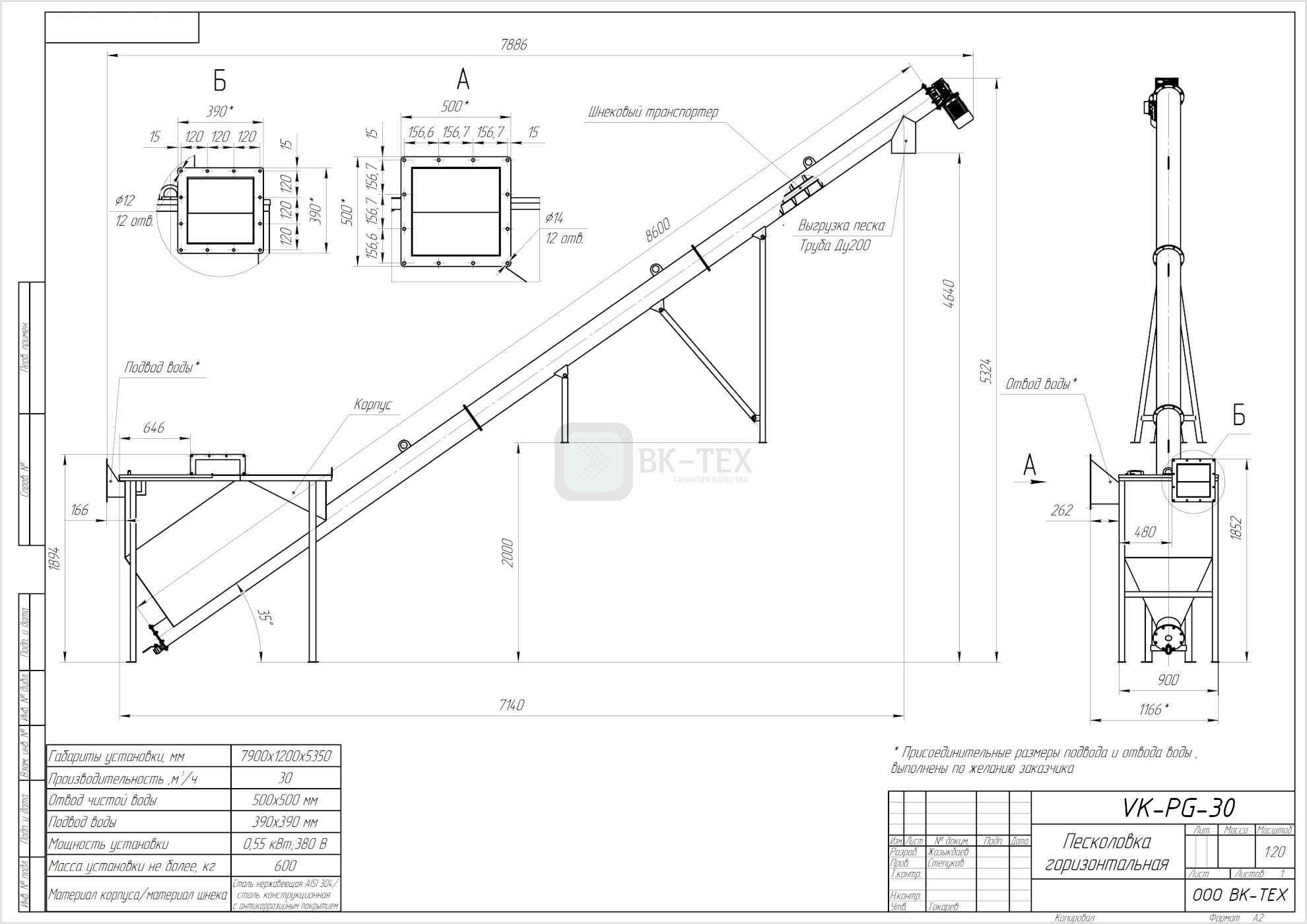
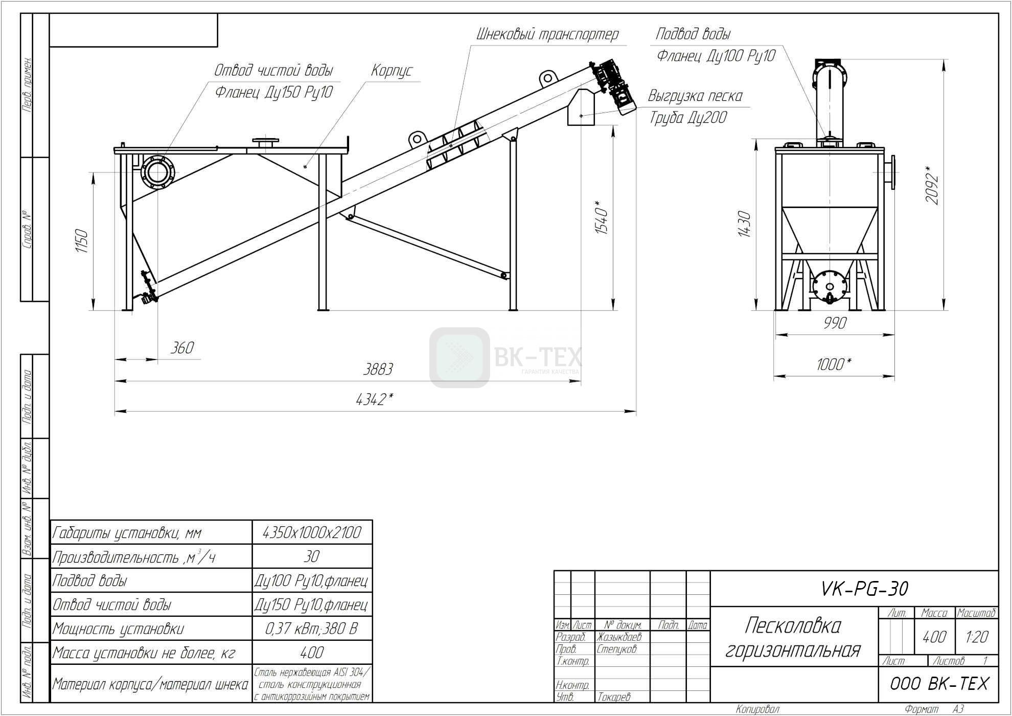
Чертеж горизонтальной песколовки: элементы конструкции
В чертеже горизонтальной песколовки должны быть отображены:
-
Общий вид (план и разрез);
-
Профиль с указанием уклонов дна;
-
Узлы подачи и отвода сточных вод;
-
Расположение механизмов удаления осадка;
-
Привязка к местности и инженерным сетям.
При проектировании важно обеспечить свободный доступ для обслуживания и ревизии, а также возможность дренажа и аварийного сброса.
Заключение
Горизонтальная песколовка — это эффективное инженерное решение для удаления минеральных примесей и защиты систем водоочистки. Её применение позволяет не только продлить срок службы оборудования, но и повысить общую эффективность очистки сточных вод. Выбор типа песколовки, её расчет и реализация должны производиться с учетом конкретных условий эксплуатации и норм проектирования.
Для подбора оборудования для ваших нужд просим вас заполнить Опросный лист и направить нам на почту: info@vk-t.ru
Песколовка горизонтальная
Применяется: для удаления крупных нерастворимых частиц, таких как песок, гравий и другие твердые включения, из сточных или природных вод, на первом этапе очистки
Дополнительно поставляется: Конвейер, емкость сбора шлама, шнековый пресс.
Материалы изготовления: Нержавеющая сталь (AISI 304, 316, 321)
Сроки поставки: 40-75 рабочих дней в зависимости от загруженности производства.





