Модельный ряд
Пескоуловитель: Принцип работы и преимущества для очистки сточных вод
Введение в пескоуловители для сточных вод
Пескоуловители играют важную роль в процессе очистки сточных вод и обеспечении эффективной работы водоотведения. Эти устройства используются для удаления песка и других твердых частиц из сточных вод, предотвращая засорение трубопроводов и других элементов системы. Особенно актуальными являются пескоуловители для внутренней канализации, которые применяются в жилых, коммерческих и промышленных зданиях. В данной статье мы подробно рассмотрим, как работают тангенциальные песколовки, их преимущества и важность для очистки сточных вод.
Что такое пескоуловитель и как он работает?
Пескоуловитель — это специальное оборудование, предназначенное для удаления песка, ила и других твердых частиц из сточных вод. Он представляет собой фильтрационную установку, которая использует принцип оседания твердых частиц в жидкости. Важно отметить, что пескоуловители могут быть установлены на разных этапах очистки сточных вод, в том числе на входе в систему, что позволяет эффективно предотвращать засорение.
Тангенциальная песколовка: принцип работы
Тангенциальная песколовка — это тип пескоуловителя, который работает по принципу тангенциального потока воды. В этом процессе вода поступает в устройство под углом, что создает вихревое движение, способствующее осаждению тяжелых частиц на дно. Такой принцип позволяет повысить эффективность очистки, так как частицы быстрее оседают и не смываются обратно в поток воды.
Преимущества тангенциальных песколовок
-
Высокая эффективность очистки: тангенциальная технология позволяет эффективно удалять песок и другие твердые частицы, что улучшает работу всей системы водоотведения.
-
Минимизация засорений: тангенциальные песколовки предотвращают засорение трубопроводов и насосных станций, что снижает вероятность аварий и необходимости частого обслуживания.
-
Экономия пространства: тангенциальные устройства компактны и могут быть установлены в ограниченных пространствах, что делает их удобными для использования в разных типах объектов.
-
Автоматизация процесса: современные тангенциальные песколовки оснащены автоматическими системами управления, что позволяет уменьшить участие человека в процессе очистки.
Тангенциальные песколовки для очистки сточных вод
Тангенциальные песколовки для очистки сточных вод предназначены для установки в системах водоотведения и очистки, где требуется эффективное удаление твердых частиц. Они широко используются в различных отраслях, включая промышленность, коммунальные службы и сельское хозяйство.
Процесс очистки с использованием тангенциальных песколовок включает несколько ключевых этапов:
-
Вода поступает в устройство под углом, что создает тангенциальный поток.
-
Вихревое движение способствует оседанию песка и других твердых частиц на дне устройства.
-
Очищенная вода выходит из песколовки, готовая к дальнейшей обработке или сбросу.
Расчет тангенциальной песколовки
При проектировании тангенциальных песколовок важным этапом является их расчет. Он включает несколько ключевых факторов, таких как:
-
Расход сточных вод: необходимо определить объем воды, который будет проходить через песколовку, чтобы правильно выбрать ее размеры.
-
Тип твердых частиц: для каждого типа частиц может требоваться различная интенсивность потока и форма установки.
-
Конструкция устройства: расчет включает определение угла наклона, диаметра и других параметров для оптимального потока воды.
Кроме того, расчет тангенциальной песколовки включает в себя оценку ее эффективности при различных расходах воды и уровнях загрязнения.
Преимущества тангенциальной технологии для очистки сточных вод
Использование тангенциальных песколовок в очистных системах сточных вод имеет ряд неоспоримых преимуществ. Эти устройства обеспечивают:
-
Минимизацию потерь воды: благодаря высокой эффективности удаления твердых частиц, количество воды, которую нужно переработать в дальнейшем, снижается.
-
Устойчивость к загрязнениям: тангенциальная технология позволяет легко справляться с большими объемами воды, даже если она содержит значительное количество твердых частиц.
-
Долговечность и надежность: конструкции тангенциальных песколовок обеспечивают долгий срок службы при минимальном обслуживании.
Роль пескоуловителей в системах водоотведения
Пескоуловители, включая тангенциальные устройства, играют критически важную роль в системах водоотведения, особенно в крупных промышленных и коммунальных объектах. Эти устройства помогают предотвращать засорение трубопроводов и насосных станций, что значительно снижает риски аварий и повышает долговечность всей системы.
Кроме того, пескоуловители способствуют более эффективной очистке сточных вод, что особенно важно для соблюдения экологических стандартов и защиты водоемов от загрязнения.
Как выбрать пескоуловитель для вашей системы очистки сточных вод
При выборе пескоуловителя для системы водоотведения необходимо учитывать несколько факторов:
-
Объем сточных вод: важно подобрать устройство, которое может эффективно обрабатывать предполагаемые объемы сточных вод.
-
Тип загрязнений: в зависимости от того, какие твердые частицы присутствуют в воде, необходимо выбрать соответствующую модель пескоуловителя.
-
Простота установки и обслуживания: предпочтение стоит отдавать устройствам, которые легко устанавливаются и обслуживаются.
-
Эффективность: важно оценить, насколько эффективно пескоуловитель будет справляться с задачей очистки сточных вод.
Заключение
Пескоуловители, особенно тангенциальные песколовки, являются неотъемлемой частью систем очистки сточных вод. Они обеспечивают высокую эффективность очистки, предотвращают засорение трубопроводов и насосных станций, а также способствуют снижению экологического воздействия на окружающую среду. Выбор и правильная установка пескоуловителей помогают значительно улучшить работу всей системы водоотведения и очистки.
Для подбора оборудования для ваших нужд просим вас заполнить Опросный лист и направить нам на почту: info@vk-t.ru
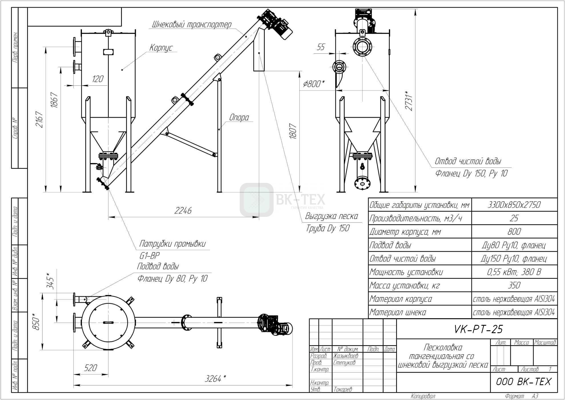
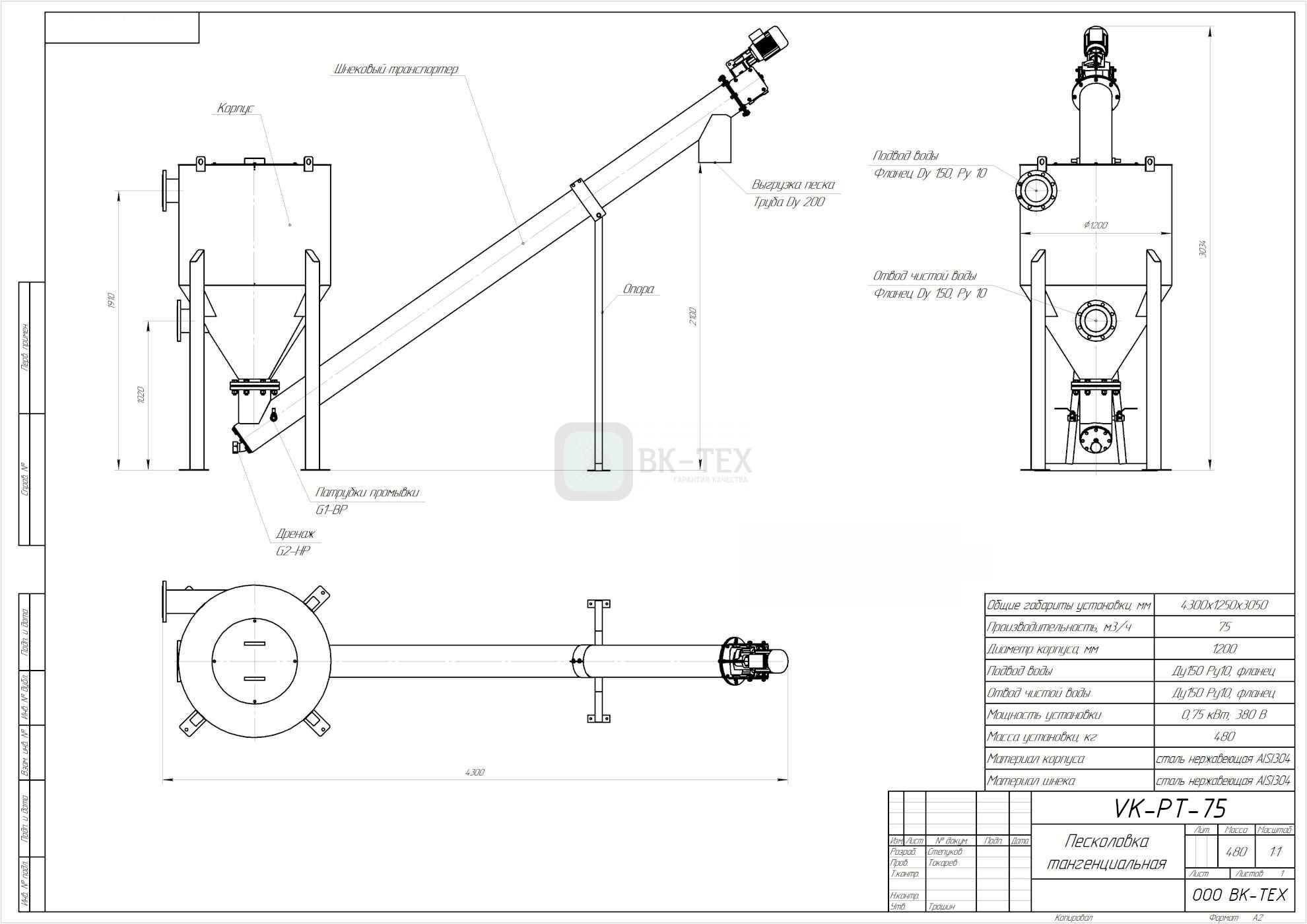
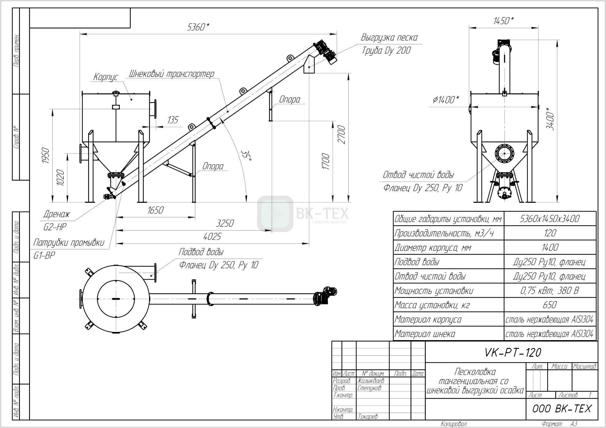
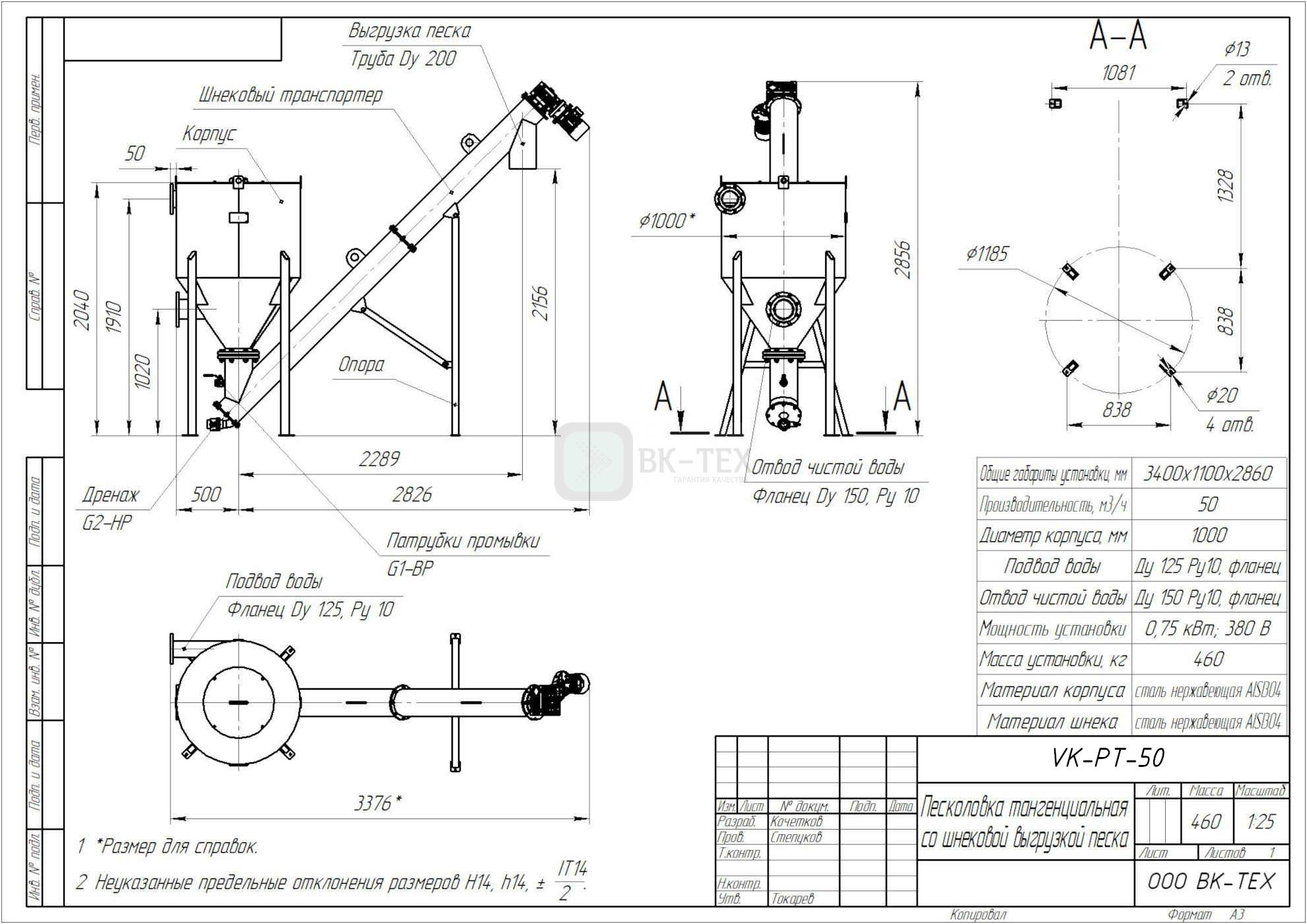
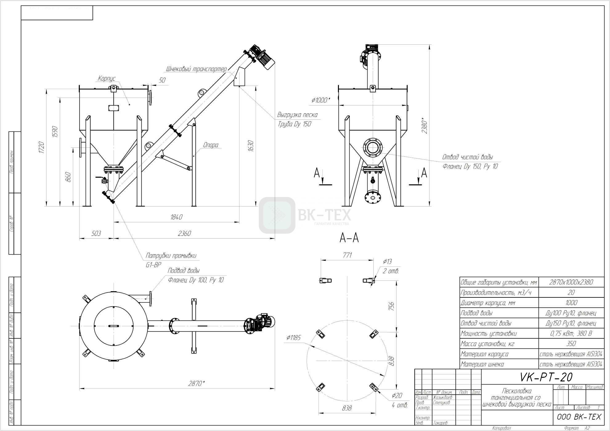
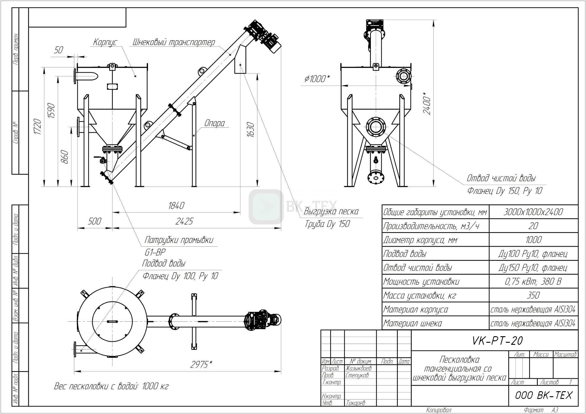
Песколовка тангенциальная
Применяется: для удаления крупных нерастворимых частиц, таких как песок, гравий и другие твердые включения, из сточных или природных вод, на первом этапе очистки.
Дополнительно поставляется: Конвейер, Шнековый пресс
Материалы изготовления: Нержавеющая сталь (AISI 304, 316, 321)
Сроки поставки: 40-75 рабочих дней в зависимости от загруженности производства.









