Модельный ряд
Грабельная решетка для очистки сточных вод: надёжный барьер твёрдых включений
Назначение и роль грабельной решетки в системе водоочистки
Грабельная решетка для очистки сточных вод — это ключевой элемент механической стадии очистки, который используется для первичного удаления крупных механических примесей из потока сточных вод. Основная функция — удаление мусора, веток, тряпок, пластиковых отходов, органических включений, которые могут повредить насосное оборудование и снизить эффективность последующих этапов очистки.
Конструкция грабельной решетки: компоненты и принцип действия
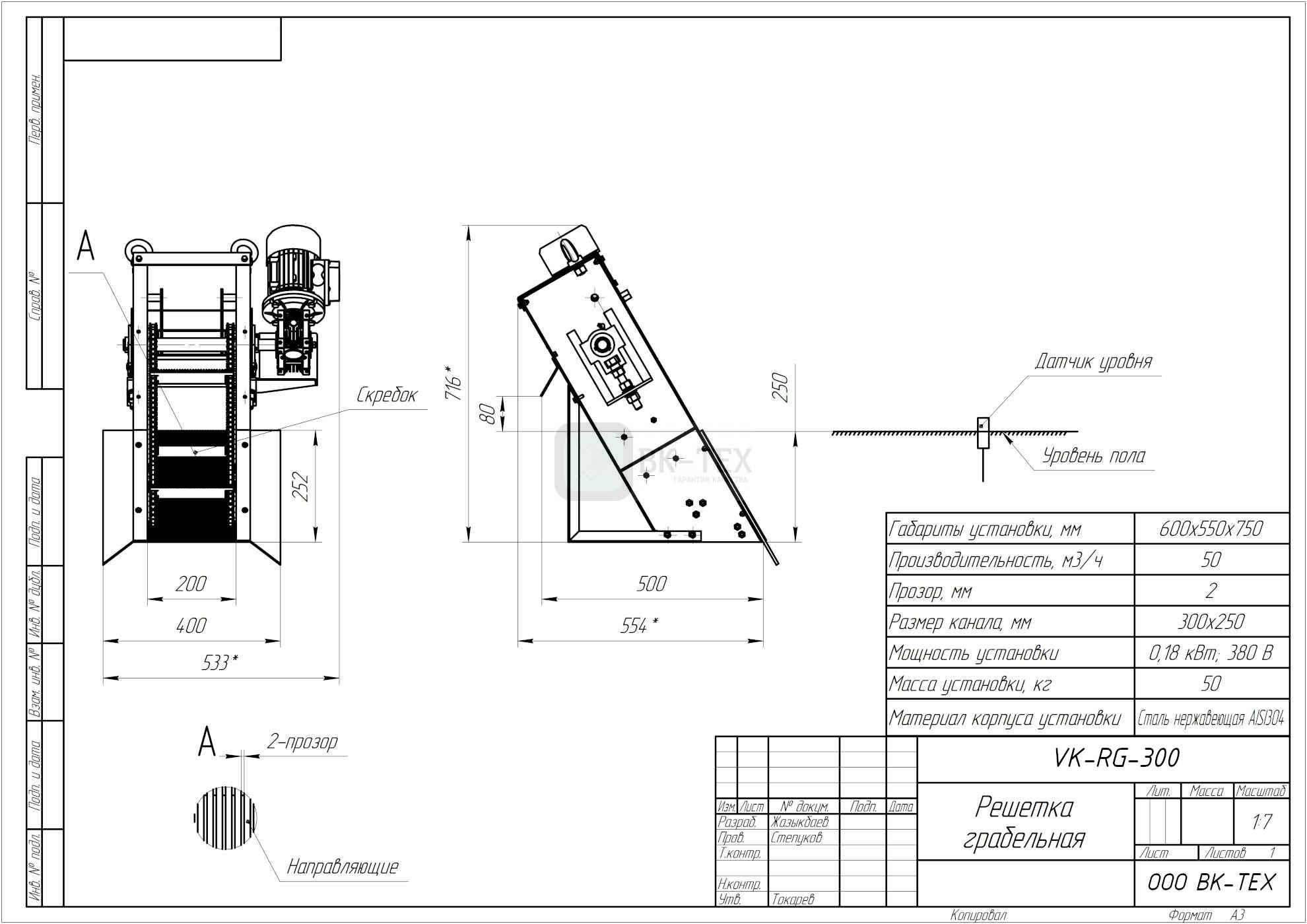
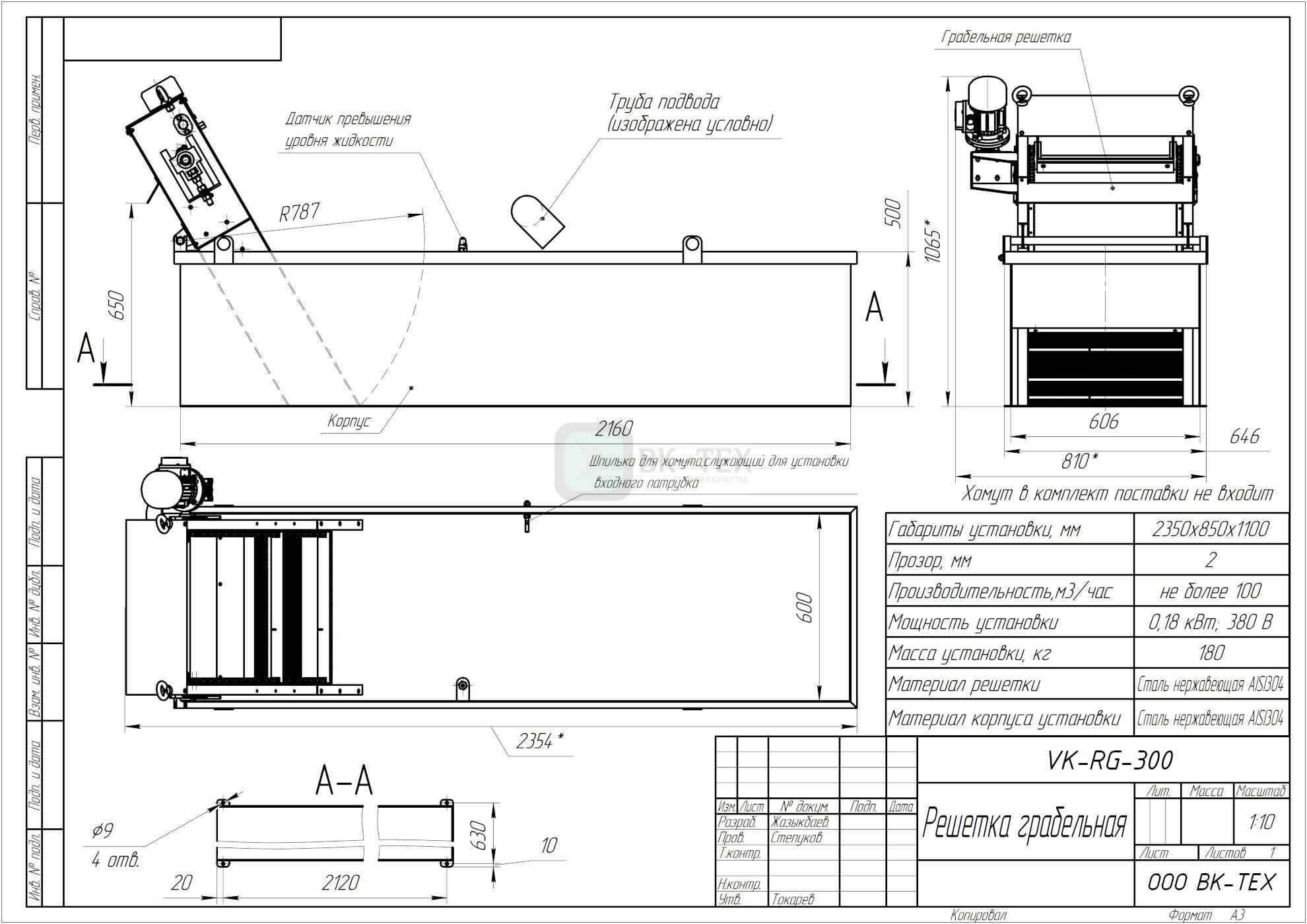
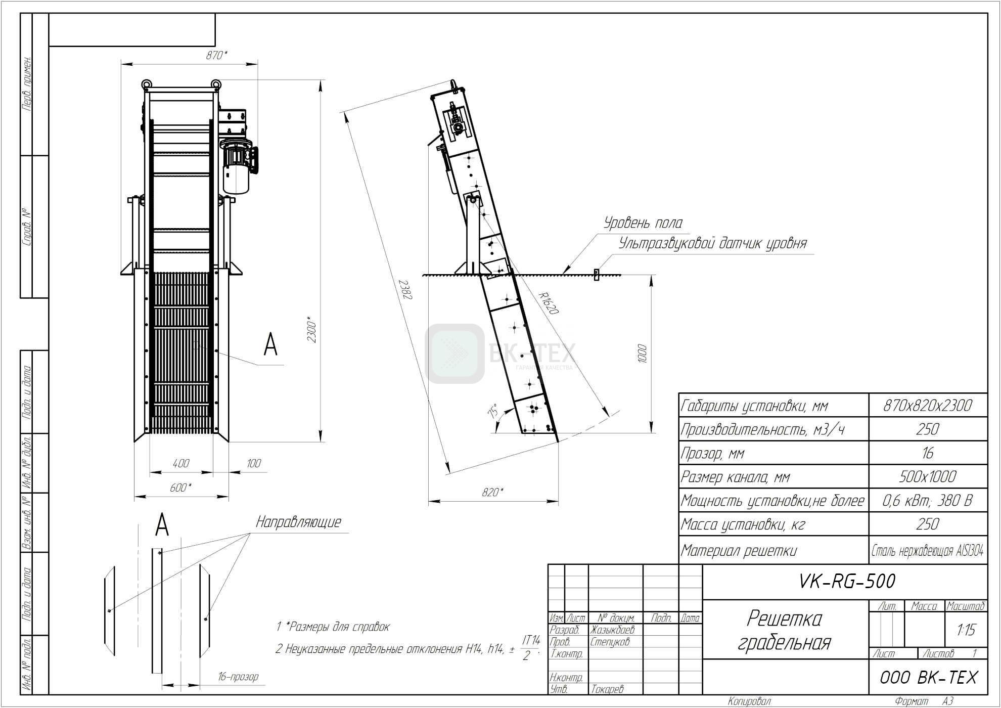
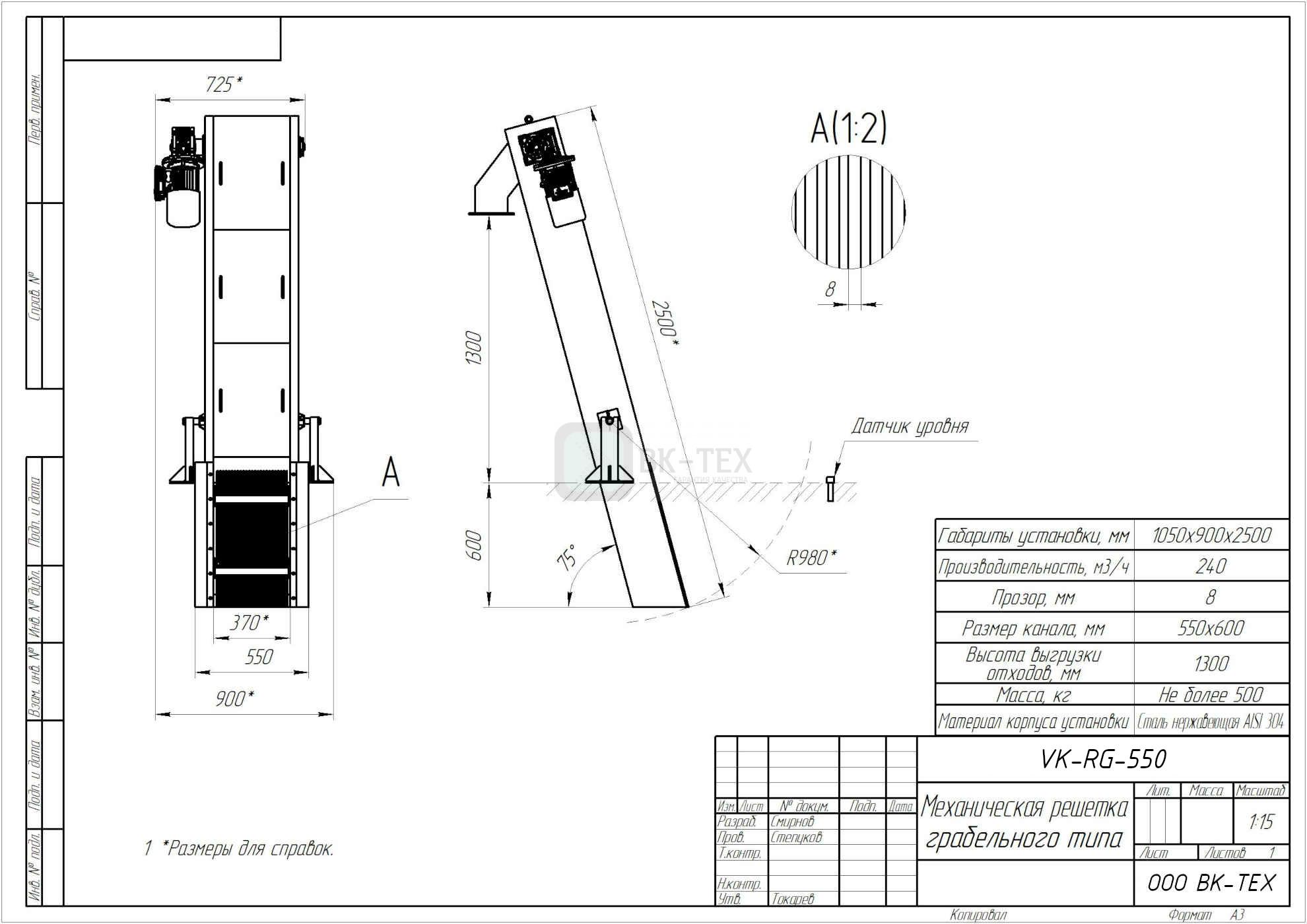
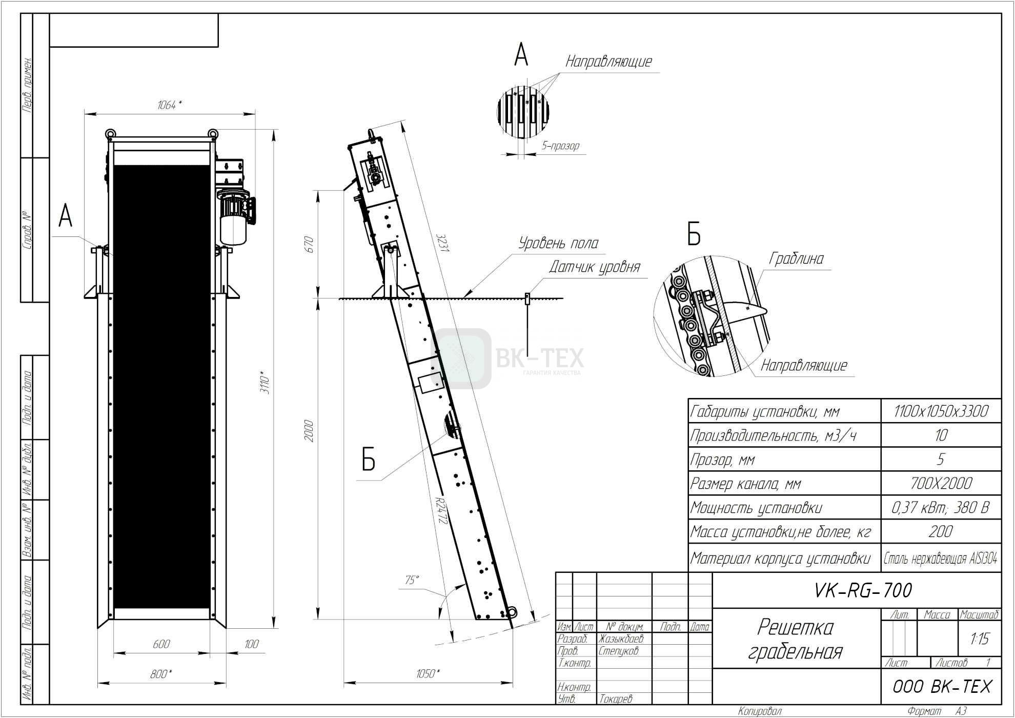
Решетка грабельная состоит из следующих основных элементов:
-
Решеточного поля — набора металлических прутьев с заданным зазором (от 5 до 50 мм), сквозь которые проходит вода;
-
Грабельного механизма — подвижных зубьев или рамок, очищающих решётку от задержанных включений;
-
Цепного или шнекового привода — обеспечивает непрерывное движение граблей;
-
Контейнера или транспортной системы — для сбора и удаления извлечённых отходов;
-
Моечной и прессующей системы (в усовершенствованных моделях) — для дополнительной обработки собранного мусора.
Грабельная решетка для очистки стока может работать в автоматическом, полуавтоматическом или ручном режиме, в зависимости от проекта и объёма поступающих стоков.
Преимущества применения грабельных решеток
-
Высокая производительность: способна перерабатывать потоки до 5000 м³/ч;
-
Надёжность и простота обслуживания: минимум движущихся элементов, легкость замены износостойких деталей;
-
Универсальность: применяются на коммунальных, промышленных, сельскохозяйственных и пищевых объектах;
-
Автоматизация: возможна интеграция с системами управления, что снижает потребность в ручном труде;
-
Защита последующих стадий очистки: предотвращает засорение насосов, труб и аэротенков.
Классификация грабельных решеток по типу конструкции
По направлению установки
-
Вертикальные — компактны, идеальны для ограниченных по ширине каналов;
-
Наклонные (под углом 65–75°) — наиболее распространённый тип, обеспечивает лучший отвод мусора;
-
Горизонтальные — применяются в специальных отстойниках и распределительных резервуарах.
По способу очистки
-
Механические — автоматические, с приводом, не требуют постоянного присутствия персонала;
-
Ручные — применяются на малых объектах, требуют периодической очистки вручную.
По типу граблей
-
Цепные — грабли перемещаются на цепях, часто применяются на крупных объектах;
-
Шнековые (винтовые) — дополнительно прессуют и транспортируют мусор;
-
Ленточные — с непрерывной лентой, покрытой зубцами.
Технические характеристики грабельных решеток
| Параметр | Значение |
|---|---|
| Производительность | от 10 до 5000 м³/ч |
| Ширина зазоров между прутьями | от 3 до 50 мм |
| Угол наклона | от 35° до 90° |
| Материал | нержавеющая сталь AISI 304/316 |
| Управление | ручное / полуавтомат / ПЛК |
| Мощность электропривода | от 0.75 до 7.5 кВт |
Материалы изготовления и устойчивость к среде
Для обеспечения долговечности и надёжности грабельные решетки изготавливаются из кислотостойкой нержавеющей стали. Конструкции устойчивы к:
-
Воздействию агрессивных сточных сред;
-
Абразивному износу;
-
Коррозии и биологическому загрязнению.
По запросу возможна поставка моделей с порошковым покрытием, антикоррозийной обработкой и использованием пластиковых прутков.
Автоматизация и управление процессом очистки
Современные грабельные решетки оснащаются автоматическими системами управления, которые:
-
Активируют цикл очистки при повышении уровня воды;
-
Контролируют степень загрязнённости решетки;
-
Управляют шнеками, насосами и прессами;
-
Передают данные на панель оператора или в диспетчерскую.
Области применения грабельных решеток
Решетка грабельная для очистки сточных вод используется на следующих объектах:
-
Муниципальные и сельские очистные сооружения;
-
Промышленные предприятия: пищевая, химическая, целлюлозно-бумажная промышленность;
-
ЖКХ-объекты: насосные станции, станции повышения давления;
-
Установки для очистки дождевых и талых вод;
-
Фермы и комплексы животноводства — для предварительной фильтрации навозных стоков.
Монтаж и обслуживание грабельных решеток
Монтаж оборудования производится в открытых каналах, бетонных лотках или металлических резервуарах. Рекомендуется:
-
Устанавливать решетку с запасом по производительности;
-
Обеспечить доступ для технического обслуживания;
-
Установить систему аварийной сигнализации.
Обслуживание включает:
-
Ежедневный осмотр граблей и решеточного поля;
-
Еженедельную очистку узлов, если не предусмотрена промывка;
-
Проверку натяжения цепей и состояния подшипников;
-
Периодическую смазку подвижных элементов.
Срок службы оборудования — до 20 лет при регулярном обслуживании.
Производители грабельных решеток
На рынке представлено множество отечественных и зарубежных производителей:
Отечественные
-
ООО «ВК-ТЕХ» — серийное производство грабельных решеток разных типоразмеров;
-
ЗАО «Водпромтех» — предлагает модульные решения для малых и средних объектов;
-
НПО «Аквасервис» — занимается проектированием и монтажом систем под ключ.
Зарубежные
-
Huber (Германия) — мировой лидер, предлагает полностью автоматизированные установки;
-
FSM Frankenberger (Германия) — производит промышленные решетки высокой производительности;
-
Estruagua (Испания) — модели с минимальным энергопотреблением и высокой надёжностью.
Заключение
Грабельная решетка — это основа механической очистки сточных вод. Её надёжность, универсальность и высокая производительность делают её незаменимой в любой системе водоочистки. Благодаря современным технологиям, автоматизации и устойчивым материалам грабельные решетки обеспечивают эффективную защиту инфраструктуры и стабильную работу очистных сооружений.
Для подбора оборудования для ваших нужд просим вас заполнить Опросный лист и направить нам на почту: info@vk-t.ru
Решетка грабельная
Применяется: для механической очистки сточных вод от крупных примесей, таких как твёрдые отходы, ветки, пластик, текстиль и другие крупные включения.
Дополнительно поставляется: Шнековый пресс, Конвейер, Шитовой затвор, емкость для мусора
Материалы изготовления: Нержавеющая сталь (AISI 304, 316, 321)
Сроки поставки: 40-75 рабочих дней в зависимости от загруженности производства.











