Модельный ряд
Вертикальная шнековая решетка: ключ к эффективной механической очистке сточных вод
Что такое вертикальная шнековая решетка и зачем она нужна
Вертикальная шнековая решетка — это специализированное оборудование для механической очистки сточных вод, предназначенное для удаления крупных и средних включений из потока жидкости. Устанавливаются такие устройства, как правило, на канализационно-насосных станциях (КНС), в системах предварительной очистки промышленных и бытовых стоков, а также в системах водоподготовки.
Основным рабочим элементом в конструкции является шнек (винт), который осуществляет транспортировку задержанных загрязняющих веществ по наклонной или вертикальной трубе. Благодаря такой конструкции обеспечивается непрерывный самоочищающийся процесс, сводящий к минимуму необходимость технического обслуживания.
Преимущества использования вертикальных шнековых решеток
-
Компактность и вертикальная установка — позволяет экономить пространство в очистных сооружениях.
-
Низкое энергопотребление за счёт эффективного электропривода и оптимальной кинематики.
-
Высокий уровень сепарации: решётки способны задерживать твердые частицы от 3 мм и выше.
-
Самоочищающаяся конструкция — отсутствие необходимости в частом вмешательстве персонала.
-
Устойчивость к коррозии, благодаря использованию материалов, таких как нержавеющая сталь AISI 304, 316 и 321.
Шнековая решетка для очистки сточных вод: принцип работы
Работа оборудования строится на следующем алгоритме:
-
Поступление сточных вод в зону фильтрации.
-
Задержание твердых включений формующей решеткой.
-
Перемещение задержанных включений шнековым транспортером вверх.
-
Прессование и обезвоживание отфильтрованных включений перед выгрузкой.
-
Автоматическое очищение фильтрующего элемента щетками или скребками.
Эта технология особенно актуальна при необходимости непрерывной эксплуатации и минимального участия персонала.
Расчет формующей решетки шнекового пресса
Расчет решетки для шнекового пресса — критически важный этап проектирования оборудования. При этом учитываются следующие параметры:
-
Производительность (м³/час);
-
Шаг и диаметр шнека;
-
Размер ячейки фильтрующей решетки;
-
Тип сточных вод (бытовые, промышленные, высоковязкие);
-
Требования к степени обезвоживания;
-
Материал конструкции (чаще всего применяется нержавеющая сталь AISI 316T или 321).
При работе с агрессивными веществами, например, бентонитом, необходимо провести расчет формующей решетки шнекового пресса для бентонита с учётом его абразивных и адгезионных свойств.
Вертикальная шнековая решетка для КНС
Особенности вертикальных шнековых решеток для КНС заключаются в:
-
Монтажной гибкости — возможна установка в существующие коллекторы без значительной реконструкции;
-
Герметичности корпуса, что предотвращает выброс запахов;
-
Возможности интеграции с автоматизированными системами управления КНС;
-
Высокой надёжности, позволяющей эксплуатировать оборудование в условиях высокой влажности и агрессивной среды.
Решетка шнековая для механической очистки сточных вод
В зависимости от задач, решетка шнековая для механической очистки сточных вод может иметь:
-
Один или два фильтрующих барабана;
-
Систему обратного хода (реверс) для устранения заклинивших включений;
-
Литой корпус из стойких к коррозии сплавов;
-
Автоматику управления с функцией дистанционного контроля;
-
Различные варианты расположения привода — с одним или двумя мотор-редукторами.
Материалы исполнения и устойчивость к нагрузкам
В производстве применяются следующие марки стали:
-
AISI 304 — универсальный выбор для умеренных условий эксплуатации;
-
AISI 316/316T — повышенная устойчивость к агрессивным средам;
-
AISI 321 — термостойкость и стойкость к кислотной коррозии;
-
AISI 430 и 201 — бюджетные варианты при щадящих условиях работы.
Все модели проходят антикоррозионную обработку, а также могут оснащаться системами CIP-очистки для автоматического обслуживания внутренних поверхностей.
Шнековая решетка цена и классификация по ОКПД 2
Стоимость оборудования напрямую зависит от:
-
Габаритных размеров;
-
Производительности;
-
Комплектации автоматикой;
-
Материала изготовления;
-
Необходимости нестандартного расчета или интеграции в существующую инфраструктуру.
По классификатору ОКПД 2 шнековые решетки относятся к разделу 28.29.12 — «Машины и оборудование для фильтрации или очистки жидкостей».
Вертикальная шнековая решетка: стандарты качества и сертификация
Оборудование подлежит обязательной сертификации, включая:
-
Декларацию соответствия ТР ТС;
-
Промышленную санитарную экспертизу;
-
Протоколы испытаний на герметичность и устойчивость к нагрузкам;
-
Сертификаты ISO 9001 у производителя.
Кроме того, конструкции могут быть адаптированы под европейские стандарты CE при поставках за рубеж.
Заключение
Шнековая решетка для очистки сточных вод — неотъемлемый элемент современной канализационной инфраструктуры. Вертикальная шнековая решетка позволяет обеспечить эффективную механическую фильтрацию даже при ограниченном пространстве. За счёт применения высококачественных материалов, точных расчетов решеток, и современной автоматизации, данные устройства демонстрируют максимальную эффективность и надежность.
Они незаменимы при строительстве и модернизации КНС, очистных сооружений промышленных предприятий, а также в сельском хозяйстве, при работе с бентонитом и другими сложными смесями.
Для подбора оборудования для ваших нужд просим вас заполнить Опросный лист и направить нам на почту: info@vk-t.ru
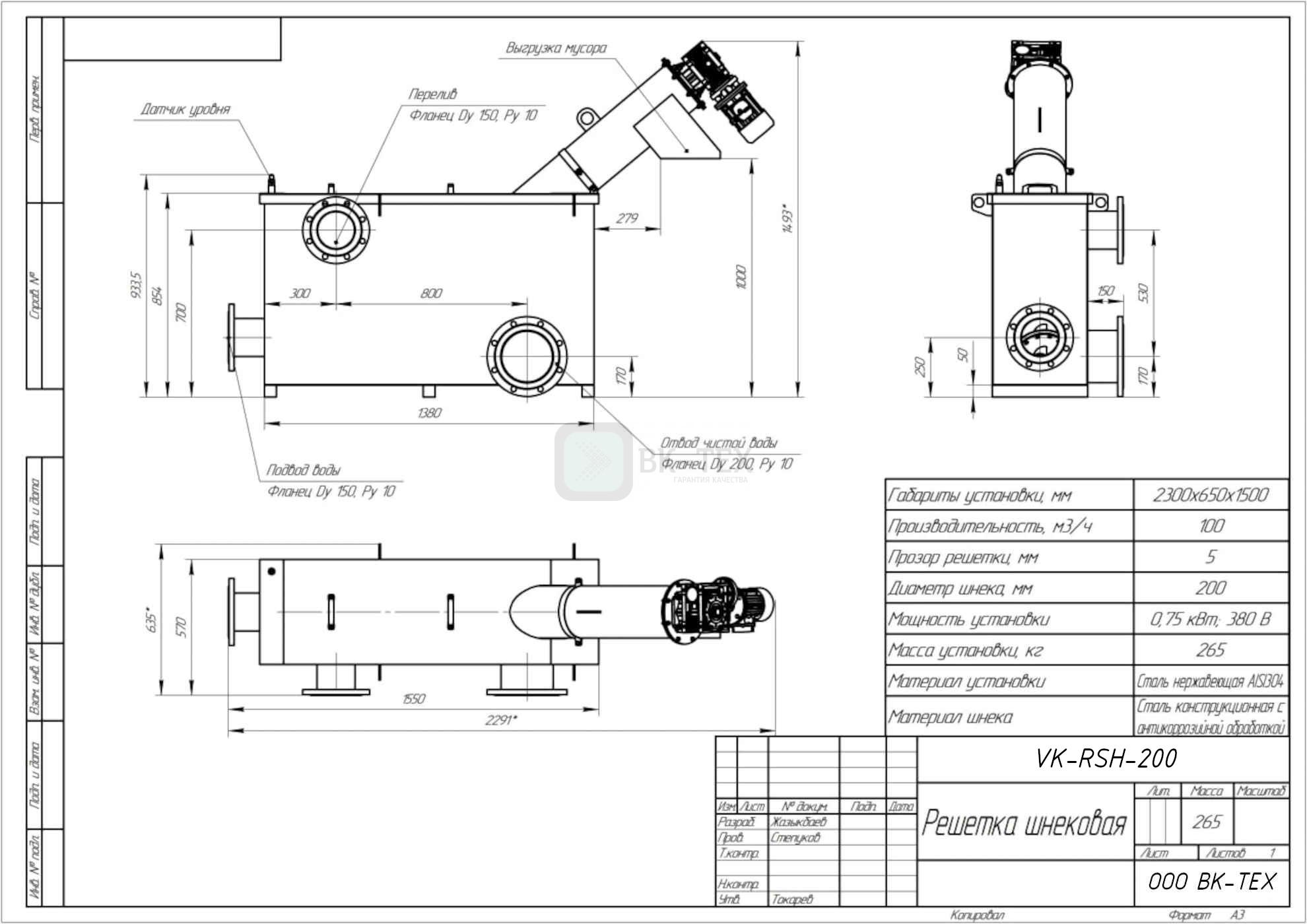
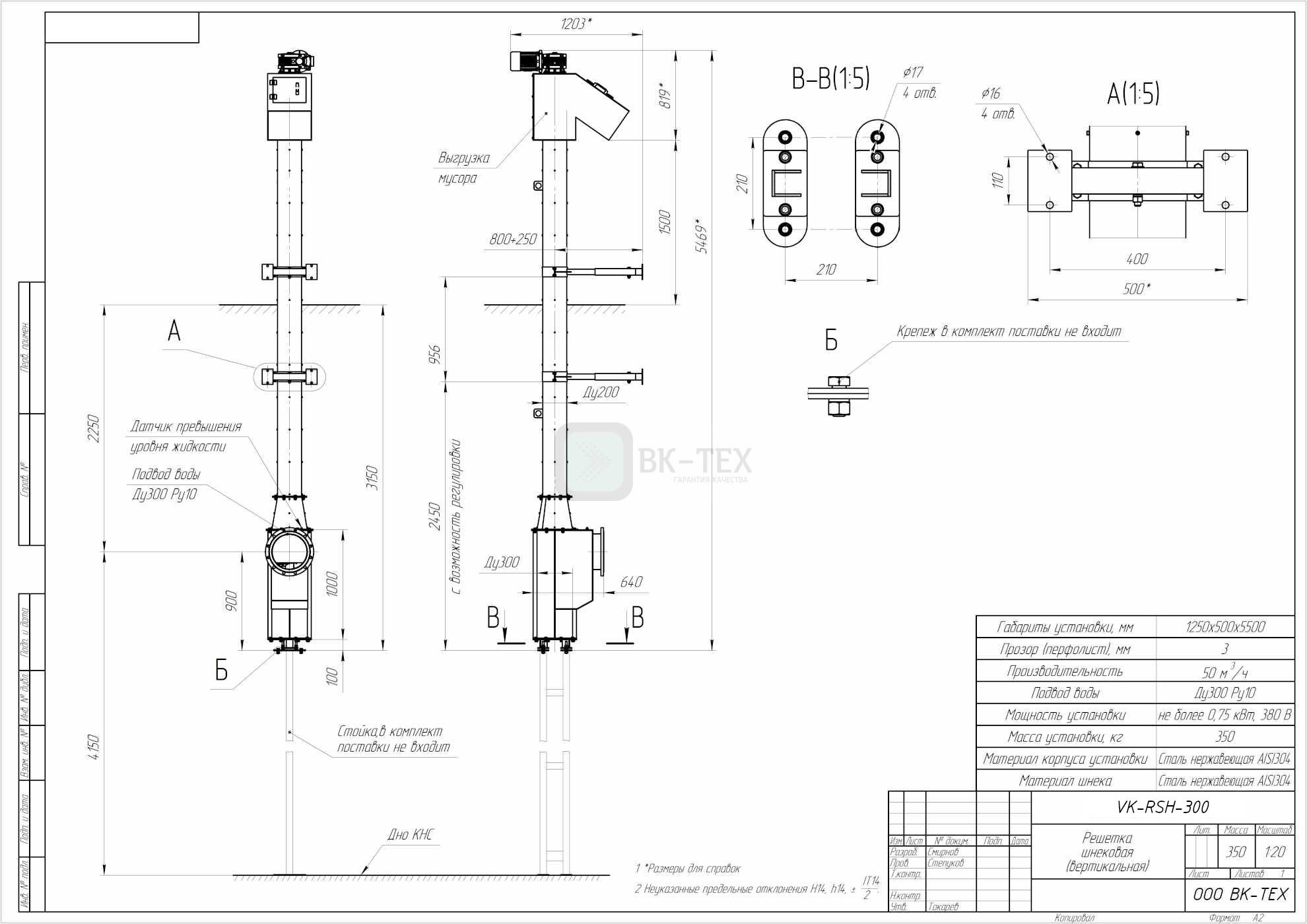
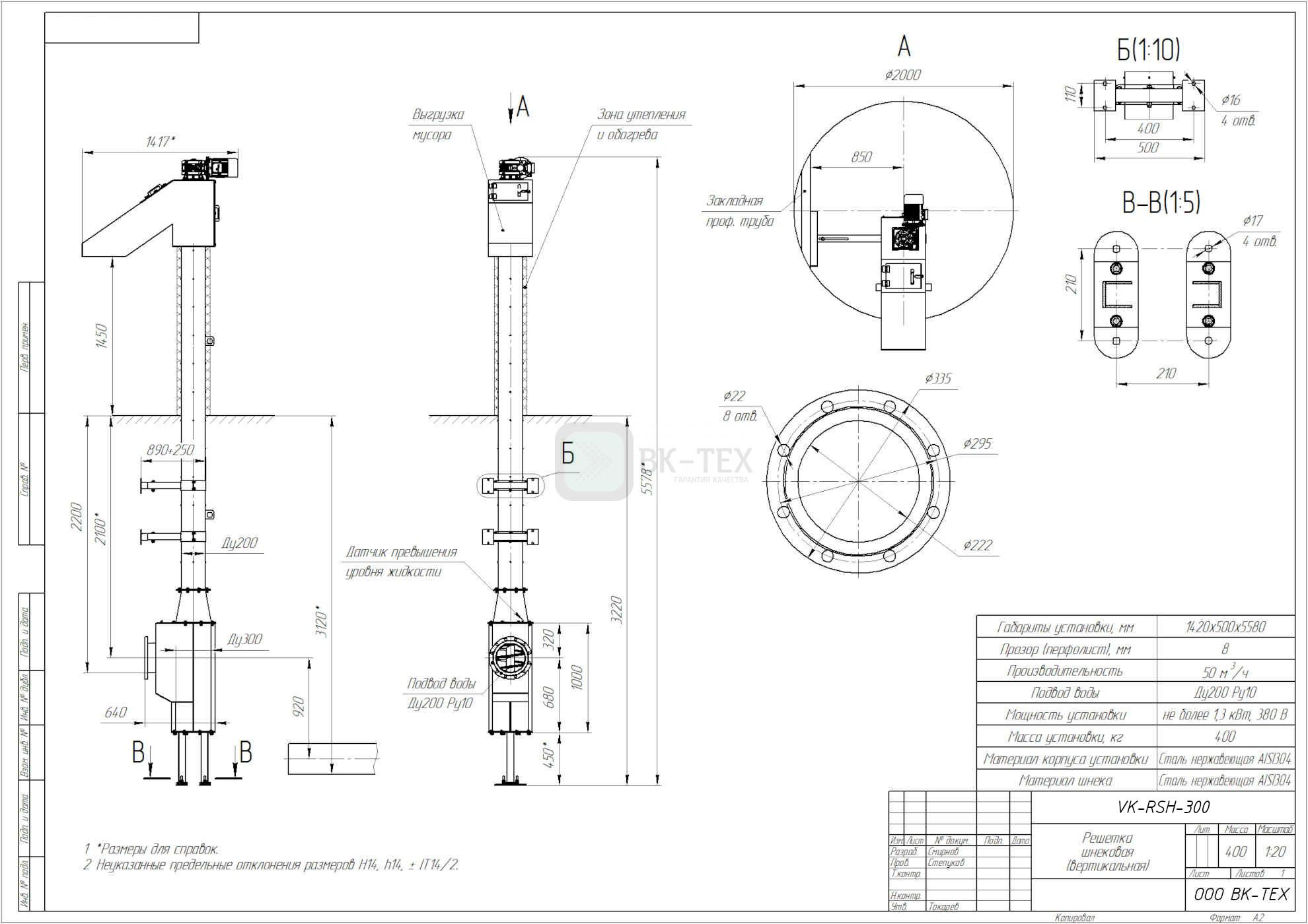
Решетка шнековая
Применяется: для очистки воды вот включений которые больше прозора решетки. Включения с сточной водой попадают на решетку (перфорированный лист) там задерживаться и с помощью щетки на валу шнека подниматься на сброс в контейнер. Изготавливаются в трех видах (Вертикальная, В корпусе, Канальная под углом), дополнительно оснащается системой промывки.
Дополнительно поставляется: Конвейер, Шнековый пресс, емкость для мусора
Материалы изготовления: Нержавеющая сталь (AISI 304, 316, 321)
Сроки поставки: 40-75 рабочих дней в зависимости от загруженности производства.









