Модельный ряд
| Модель | Производительность (м3/сут) | Колличество мешков (шт) |
|---|---|---|
| VK-OM-1 | 1,5 | 1 |
| VK-OM-2 | 3 | 2 |
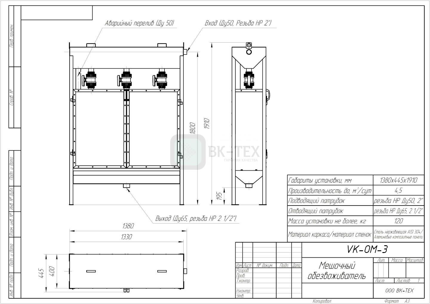
| VK-OM-3 | 4,5 | 3 |
| VK-OM-4 | 6 | 4 |
| VK-OM-6 | 9 | 6 |
| VK-OM-12 | 18 | 12 |
Мешочный обезвоживатель осадка: эффективное решение для водоочистки
Что такое мешочный обезвоживатель осадка
Мешочный обезвоживатель осадка — это простое, но высокоэффективное оборудование, предназначенное для обезвоживания илового осадка, образующегося при очистке сточных вод. Принцип действия базируется на гравитационном стекании воды через фильтрующие мешки, внутри которых происходит удержание твёрдых частиц.
Данная технология особенно актуальна для малых и средних очистных сооружений, аграрных комплексов, пищевых производств и предприятий, заинтересованных в снижении объёмов шлама и упрощении его утилизации.
Конструкция и принцип работы мешочного обезвоживателя
Мешочный обезвоживатель состоит из следующих основных компонентов:
-
Фильтровальные мешки из прочного, влагопроницаемого, но устойчивого к разрыву материала;
-
Каркас или рама для крепления мешков;
-
Поддон или ёмкость для сбора фильтрата;
-
Система подвеса или кронштейны для замены и слива осадка;
-
Опционально — насосная станция, дозаторы реагентов и флокулянтов.
Принцип работы:
-
Загрязнённая иловая смесь подаётся в мешок с помощью насоса.
-
Под действием силы тяжести или давления жидкая часть фильтруется через ткань мешка.
-
Оставшийся внутри мешка осадок постепенно теряет влагу.
-
Через несколько часов или дней мешок снимается и содержимое утилизируется.
Преимущества мешочного метода обезвоживания
-
Экономичность: минимальные капитальные вложения по сравнению с прессами и центрифугами.
-
Простота монтажа и эксплуатации: не требует подключения к электросети, автоматике и сложной инфраструктуре.
-
Мобильность и компактность: можно установить даже в ограниченном пространстве или на временных площадках.
-
Гибкость: возможность параллельной работы с разными видами осадка.
-
Экологичность: отсутствие шума, пыли, запахов и вторичного загрязнения.
Области применения мешочных обезвоживателей
-
Муниципальные очистные сооружения;
-
ЖКХ и ТСЖ для локальных нужд;
-
Пищевая промышленность (молокозаводы, бойни, консервные заводы);
-
Сельское хозяйство (фермы, свинокомплексы, птицефабрики);
-
Нефтехимия и машиностроение (обезвоживание шламов после мойки и очистки деталей).
Мешки для обезвоживателя: материалы и технические характеристики
Мешки для обезвоживателя изготавливаются из:
-
Полипропилена (ПП) — устойчив к агрессивным средам, химическим реагентам и УФ-излучению;
-
Полиэстера (ПЭТ) — обладает высокой прочностью на разрыв и долговечностью;
-
Нейлона — применяется для особо тонкой фильтрации.
Ключевые параметры мешков:
-
Плотность ткани: от 100 до 400 г/м²;
-
Пористость/размер пор: от 1 до 200 микрон;
-
Размеры мешка: стандартные модели от 500 до 1200 мм по длине и 300–600 мм по ширине;
-
Объём: от 20 до 200 литров;
-
Метод закрытия: шнуровка, молния, зажим.
Фильтровальные мешки также могут иметь дополнительное армирование, антибактериальную обработку и усиленные швы.
Процесс установки мешочного обезвоживателя
-
Выбор площадки — желательно с твёрдым покрытием, навесом и доступом для обслуживания.
-
Монтаж металлической или пластиковой рамы, на которой будут размещены мешки.
-
Подключение подачи осадка — насос или гравитационная подача из накопителя.
-
Размещение ёмкости под фильтрат — канализация или резервуар для повторного использования воды.
-
Установка дополнительного оборудования — дозаторы флокулянтов, мешалки, гидравлический пресс (при необходимости).
Флокулянты и реагенты для улучшения обезвоживания
Перед подачей в мешок рекомендуется обрабатывать осадок флокулянтами — веществами, способствующими объединению мелкодисперсных частиц в более крупные агрегаты.
Наиболее эффективные реагенты:
-
Анионные полиакриламиды — для органических илов;
-
Катионные флокулянты — для промышленных стоков;
-
Коагулянты (соли алюминия, железа) — применяются совместно с флокулянтами для ускорения осветления.
Применение реагентов сокращает время обезвоживания до 50%, повышает сухой остаток и улучшает качество фильтрата.
Техническое обслуживание и замена мешков
-
Частота замены мешков зависит от интенсивности работы и типа осадка (от 1 до 10 раз в месяц).
-
После выгрузки обезвоженного ила, мешки необходимо промыть под давлением или в моечной машине.
-
При обнаружении порывов или снижении эффективности фильтрации требуется немедленная замена.
-
Срок службы мешка — от 3 до 12 месяцев в зависимости от условий эксплуатации.
Сравнение мешочного обезвоживателя с альтернативными методами
| Параметр | Мешочный обезвоживатель | Ленточный пресс | Центрифуга |
|---|---|---|---|
| Стоимость оборудования | Низкая | Средняя | Высокая |
| Энергорасход | Нулевой | Средний | Высокий |
| Сложность обслуживания | Минимальная | Средняя | Высокая |
| Мобильность | Высокая | Низкая | Низкая |
| Эффективность обезвоживания | Средняя (15–25% СВ) | 20–30% СВ | 25–35% СВ |
Экологические и экономические аспекты
-
Снижение объёма осадка до 70% — экономия на транспортировке и утилизации.
-
Использование фильтрата для технических нужд или повторного оборота.
-
Возможность компостирования, переработки или сжигания обезвоженного осадка.
-
Полная энергонезависимость установки при гравитационной подаче.
Заключение
Мешочный обезвоживатель осадка — это надёжное, доступное и эффективное решение для предприятий, которым важно экономить ресурсы и соблюдать экологические требования. Он обеспечивает простое управление, высокую степень фильтрации и гибкость применения, делая его отличным выбором для широкого круга задач.
Для подбора оборудования для ваших нужд просим вас заполнить Опросный лист и направить нам на почту: info@vk-t.ru
Обезвоживатель мешочный
Применяется: для обезвоживания избыточного ила и осадков разных очистных сооружений.
Дополнительно поставляется: Насос подачи, шламовая емкость, комплект фильтровальных мешков
Материалы изготовления: Нержавеющая сталь (AISI 304, 316, 321), Конструкционная сталь с антикоррозийным покрытием
Сроки поставки: 20-45 рабочих дней в зависимости от загруженности производства.










