Модельный ряд
| Модель | Производительность (м3/ч) | Габаритные размеры (мм) |
|---|---|---|
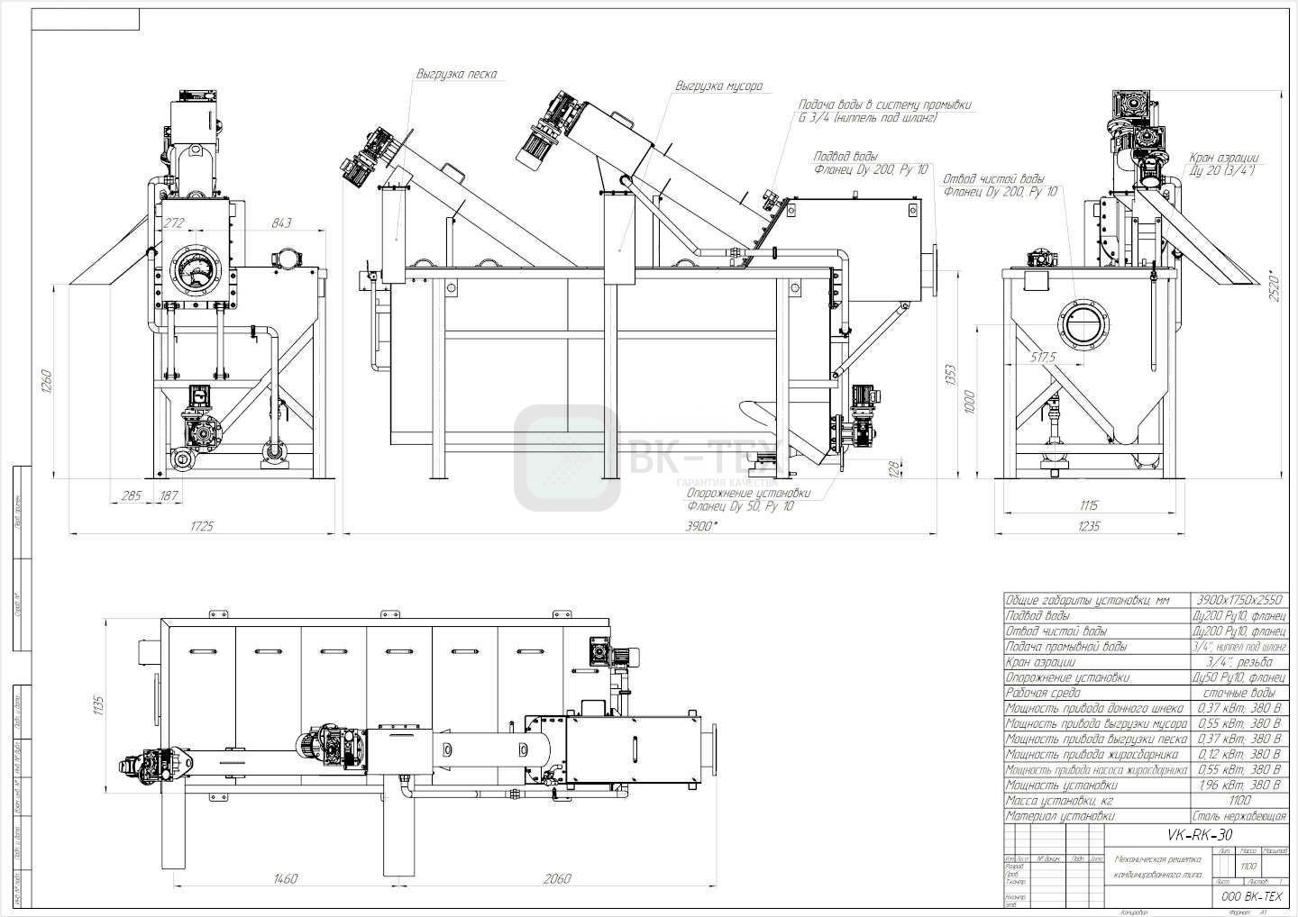
| VK-RK-30 | 30 | 3900х1620х2550 |
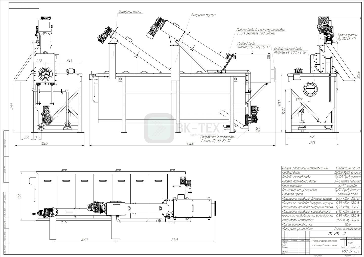
| VK-RK-50 | 50 | 4300х1620х2700 |
| VK-RK-100 | 100 | 5600х1620х2700 |
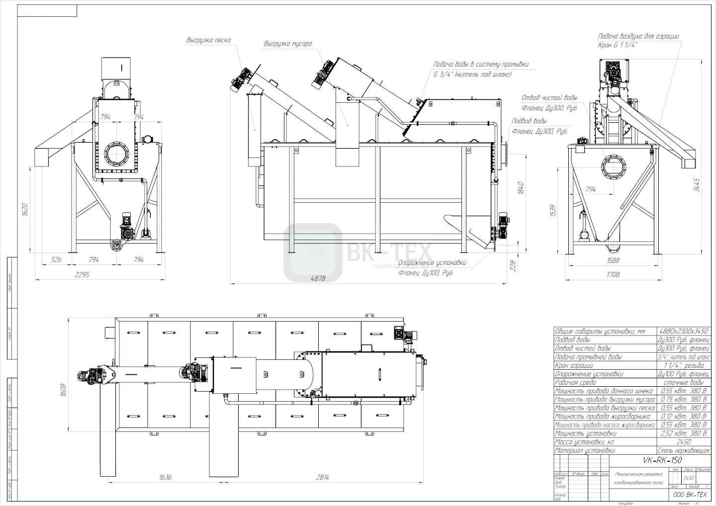
| VK-RK-150 | 150 | 4900х2300х3450 |
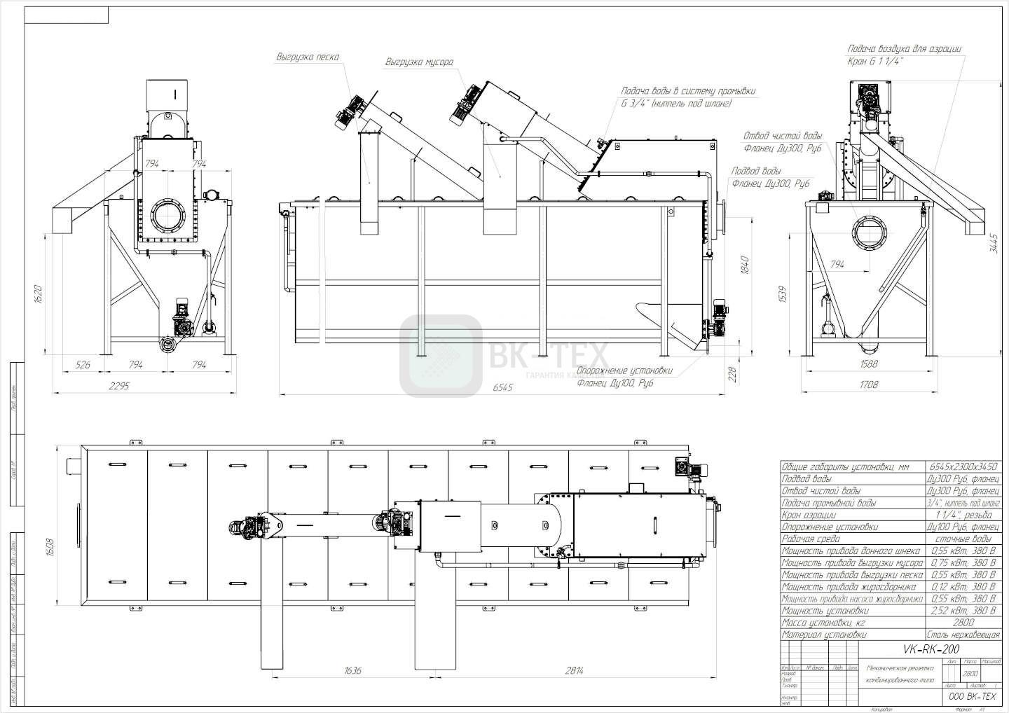
| VK-RK-200 | 200 | 6550х2300х3450 |
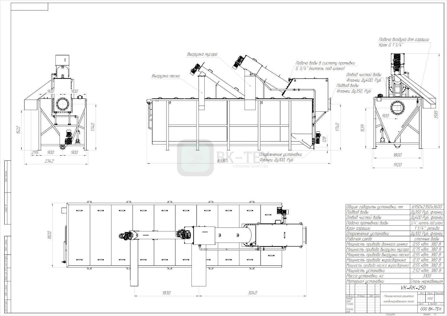
| VK-RK-250 | 250 | 6950х2350х3600 |
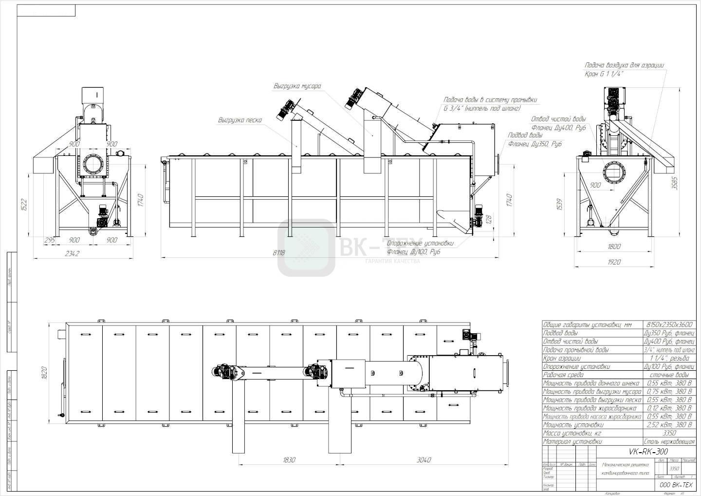
| VK-RK-300 | 300 | 8150х2350х3600 |
Решетка комбинированная: надежная механическая очистка сточных вод на всех этапах
Назначение и особенности комбинированной решетки для очистных сооружений
Решетка комбинированная — это ключевой элемент механической очистки сточных вод, применяемый на начальных этапах технологического процесса. Такое оборудование предназначено для удаления крупного и среднего мусора: веток, пластиковых предметов, бумажных изделий, тканей и других твердых включений, которые могут повредить последующее оборудование или нарушить биологическую очистку.
Комбинированная решетка для очистки сточных вод объединяет в себе функции нескольких типов решеток: грубой, тонкой и микросетки, а также может включать элементы транспортировки и обезвоживания извлеченных загрязнений.
Преимущества применения комбинированной решетки на очистных сооружениях
Использование решетки комбинированной для очистных сооружений позволяет:
-
Упростить конструкцию очистного узла, за счет совмещения нескольких этапов в одном оборудовании;
-
Снизить эксплуатационные затраты благодаря автоматизации процессов и низкому энергопотреблению;
-
Обеспечить высокую степень очистки, что критически важно для защиты насосного и аэротехнического оборудования;
-
Сократить площадь установки, благодаря компактности агрегата;
-
Автоматизировать процесс удаления и прессования мусора.
Конструктивные особенности комбинированной решетки
Конструкция может отличаться в зависимости от модели и производительности, однако в стандартной комплектации включает:
-
Решеточный блок с различной шириной зазоров (от 1 до 20 мм);
-
Самоочищающиеся грабли или шнеки, обеспечивающие сбор мусора;
-
Систему промывки, позволяющую очищать грабли от прилипших частиц;
-
Прессующее устройство, которое обезвоживает и уплотняет собранный мусор;
-
Контейнер или транспортную линию для дальнейшей утилизации отходов.
Основные технические характеристики комбинированных решеток
В зависимости от модели и задач, решетка комбинированная может обладать следующими параметрами:
-
Пропускная способность: от 10 до 5 000 м³/ч;
-
Ширина щелей или отверстий: от 0,5 мм (для мелкой очистки) до 20 мм (для грубой очистки);
-
Материал изготовления: нержавеющая сталь AISI 304/316;
-
Тип привода: электрический с редуктором, возможна защита от перегрузок;
-
Угол наклона установки: от 35° до 90°;
-
Механизмы самоочистки: щетки, промывочные системы, скребки.
Классификация комбинированных решеток
По типу установки
-
Канальные — монтируются в канал гидравлического потока, используются на насосных станциях и ЛОС;
-
Контейнерные — поставляются в виде модулей, готовых к быстрой установке;
-
Погружные — применяются в глубоких лотках и емкостях.
По типу механизма удаления загрязнений
-
С грабельным механизмом — классическое решение, высоконадежное и простое в обслуживании;
-
С шнековой подачей — мусор перемещается по винтовому конвейеру, может сразу прессоваться;
-
С ленточной системой — используются при больших объемах сточных вод.
Материалы и стойкость к агрессивной среде
Все компоненты решеток изготавливаются из кислотостойкой нержавеющей стали, устойчивой к:
-
Механическим повреждениям;
-
Химическим реагентам, содержащимся в сточных водах;
-
Биологическим агрессорам (бактерии, плесень).
По запросу возможна обработка поверхности антикоррозийными покрытиями и использование специальных материалов, включая полимеры и сплавы с повышенной устойчивостью к износу.
Автоматизация и управление
Современные модели решеток оснащаются ПЛК-контроллерами, которые позволяют:
-
Настраивать режимы работы (по времени, по уровню, по датчику давления);
-
Мониторить состояние узлов;
-
Передавать данные в систему диспетчеризации;
-
Интегрировать оборудование в общую систему SCADA.
Производители комбинированных решеток
Отечественные производители
-
ООО «АкваТех» — разработка и производство решеток для муниципальных и промышленных очистных;
-
«Эколос» — поставляет сертифицированные установки по стандартам РФ и СНГ;
-
НПО «Русская Вода» — предлагает индивидуальные решения под проект.
Импортные бренды
-
HUBER (Германия) — мировой лидер, известен долговечностью конструкций;
-
WAMGROUP (Италия) — поставляет оборудование для больших промышленных комплексов;
-
FSM Frankenberger (Германия) — специализируется на автоматизированных решетках высокой пропускной способности.
Применение комбинированных решеток на объектах
Комбинированные решетки находят применение в следующих секторах:
-
Муниципальные очистные сооружения — защита насосов и эффективная первичная фильтрация;
-
Предприятия пищевой и химической промышленности — удаление органических остатков;
-
Мясокомбинаты, молочные заводы, винокурни — обработка сточных вод с высоким содержанием твёрдых фракций;
-
Автозаправочные станции, автомойки, ТЦ — предварительная фильтрация перед жироуловителями и ЛОС.
Обслуживание и регламент работ
Для обеспечения надежной работы комбинированной решетки, необходимо:
-
Проводить ежедневный визуальный осмотр оборудования;
-
Проверять работу приводов, натяжение цепей и чистоту грабель;
-
Один раз в квартал проводить профилактическую очистку и смазку подвижных узлов;
-
Раз в год — диагностику электрооборудования, замену изношенных элементов.
Средний срок службы оборудования — от 10 до 20 лет, при условии регулярного технического обслуживания.
Заключение
Комбинированные решетки для очистных сооружений являются эффективным решением для обеспечения первичной механической очистки сточных вод. Их универсальность, автоматизация, устойчивость к износу и высокая степень очистки делают их незаменимыми на объектах различного масштаба. Благодаря их применению значительно повышается эффективность всей очистной системы, снижаются эксплуатационные затраты и увеличивается срок службы последующего оборудования.
Решетка комбинированная
Применяется: для комплексной механической очистки сточных вод, включающей в себя процессы извлечения мусора, сепарации песка и жиров, прессование мусора.
Дополнительно поставляется: Пресс, конвейер
Материалы изготовления: Нержавеющая сталь (AISI 304, 316, 321)
Сроки поставки: 40-75 рабочих дней в зависимости от загруженности производства.











